
随着全球气候变化和环境污染问题的日益严峻,节能减排、绿色环保已成为全球共识。在众多节能减排措施中,油气回收系统的安装显得尤为重要。本文将详细介绍油气回收系统的安装过程及其带来的环保效益。

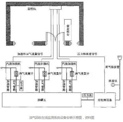
油气回收系统是指对加油站、油库等场所中油气进行收集、处理和再利用的设备。其主要作用是减少油气挥发,降低环境污染,提高能源利用率。油气回收系统主要包括油气收集、油气处理和油气再利用三个部分。

1. 现场勘察:在安装油气回收系统之前,首先要对现场进行勘察,了解加油站的规模、油气排放情况等,为后续安装提供依据。
2. 设备选型:根据现场勘察结果,选择合适的油气回收设备。设备选型应考虑油气排放量、处理效率、设备稳定性等因素。
3. 施工准备:在设备选型完成后,进行施工准备,包括施工图纸设计、材料采购、施工人员培训等。
4. 施工安装:按照施工图纸进行设备安装,包括油气收集管道、油气处理设备、油气再利用设备等。施工过程中要确保设备安装牢固、连接严密。
5. 系统调试:设备安装完成后,进行系统调试,确保油气回收系统正常运行。
6. 验收检测:系统调试完成后,进行验收检测,确保油气回收系统达到设计要求。

1. 减少油气排放:油气回收系统可以有效收集油气,减少油气挥发,降低空气污染。
2. 节能减排:通过回收利用油气,提高能源利用率,降低能源消耗,实现节能减排。
3. 改善环境质量:减少油气排放,降低空气污染,改善周边环境质量。
4. 提高经济效益:回收利用油气,降低能源成本,提高加油站的经济效益。

1. 选择正规厂家:购买油气回收设备时,要选择正规厂家,确保设备质量。
2. 严格按照规范施工:安装过程中要严格按照规范进行,确保设备安装牢固、连接严密。
3. 定期维护保养:油气回收系统运行过程中,要定期进行维护保养,确保系统正常运行。
油气回收系统的安装是节能减排、绿色环保的重要举措。通过安装油气回收系统,可以有效减少油气排放,降低环境污染,提高能源利用率,实现经济效益和环境效益的双赢。让我们共同努力,为建设美丽中国贡献力量。