

在开始安装之前,我们需要做好以下准备工作:
了解门窗系统的规格和尺寸,确保与洞口尺寸相符。
准备好安装所需的工具,如电钻、螺丝刀、水平仪等。
检查门窗系统的配件是否齐全,如密封胶、螺丝、五金件等。

在安装前,首先要对洞口进行测量,确保门窗系统的尺寸与洞口尺寸相符。具体步骤如下:
使用卷尺或激光测距仪测量洞口的宽度和高度。
在洞口上标记出门窗系统的安装位置,确保门窗系统的中心线与洞口中心线对齐。
检查洞口是否平整,如有凹凸不平,需进行打磨处理。

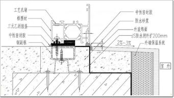
窗框是门窗系统的主体,固定窗框是安装过程中的关键步骤。以下是固定窗框的步骤:
在洞口两侧的墙体上预埋膨胀螺栓或射钉,确保窗框的稳定性。
将窗框放置在洞口内,调整窗框的水平度和垂直度,确保窗框与洞口中心线对齐。
使用螺丝将窗框与膨胀螺栓或射钉固定,确保窗框牢固。

玻璃和五金件是门窗系统的关键组成部分,其安装质量直接影响到门窗系统的性能。以下是安装玻璃和五金件的步骤:
将玻璃安装到窗框上,确保玻璃与窗框的密封性。
安装五金件,如合页、锁具、滑轮等,确保五金件与窗框的连接牢固。
调整五金件的位置,确保门窗系统的开启和关闭顺畅。

安装完成后,需要对门窗系统进行密封和检查,确保其性能和安全性。以下是密封和检查的步骤:
在窗框与墙体之间的缝隙处填充密封胶,确保门窗系统的密封性。
检查门窗系统的开启和关闭是否顺畅,如有异常,需进行调整。
检查门窗系统的密封性,确保无漏风、渗水现象。
百万门窗系统的安装是一项技术性较强的工作,正确的安装方法能够保证门窗系统的性能和寿命。在安装过程中,要严格按照以上步骤进行,确保安装质量。同时,在安装过程中要注意安全,避免发生意外事故。