
氨系统在工业生产中扮演着重要角色,尤其是在制冷、化工等领域。氨系统中的阀门安装正确与否,直接影响到系统的安全运行和效率。因此,了解氨系统阀门安装的重要性是非常必要的。

氨系统阀门安装应遵循以下基本原则:
按照介质流向安装:这是确保系统正常运行的关键。例如,常规电磁阀必须按照介质流量安装,Y形角座阀则必须按介质流向安装。这样可以有效防止水锤现象的发生。
符合规范要求:安装阀门时,必须严格按照相关规范和标准进行,确保阀门的选型、安装位置和方式符合设计要求。
注意阀门材质:氨系统中的阀门材质应具有良好的耐腐蚀性、耐压性和密封性,以适应氨介质的特性。
确保安装精度:阀门的安装位置和角度应准确无误,避免因安装误差导致系统运行不稳定。

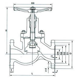
氨系统阀门安装图的设计要点如下:
系统布局:安装图应清晰展示氨系统的整体布局,包括设备、管道、阀门等各个组成部分的位置关系。
阀门类型:根据氨系统的介质特性和工作条件,选择合适的阀门类型,如截止阀、球阀、蝶阀等。
阀门位置:合理确定阀门在管道上的安装位置,确保介质流向正确,同时便于操作和维护。
阀门规格:根据管道直径和介质流量,选择合适的阀门规格,确保阀门能够满足系统运行需求。
安全措施:在安装图中标注安全措施,如泄压阀、安全阀等,以保障系统安全运行。

绘制氨系统阀门安装图通常遵循以下步骤:
收集资料:收集氨系统的设计图纸、设备参数、管道规格等相关资料。
确定系统布局:根据收集的资料,确定氨系统的整体布局,包括设备、管道、阀门等各个组成部分的位置关系。
选择阀门类型:根据氨系统的介质特性和工作条件,选择合适的阀门类型。
确定阀门位置:合理确定阀门在管道上的安装位置,确保介质流向正确,同时便于操作和维护。
标注规格和安全措施:在安装图中标注阀门规格、安全措施等信息。
绘制安装图:使用绘图软件或手工绘制安装图,确保图形清晰、准确。
审核和修改:对绘制完成的安装图进行审核,如有问题及时修改。

氨系统阀门安装图完成后,需要进行审核和验收,具体内容包括:
是否符合设计要求:检查安装图是否满足氨系统的设计要求,包括设备、管道、阀门等各个组成部分的规格、位置等。
是否符合规范标准:检查安装图是否符合相关规范和标准,确保系统安全运行。
图形清晰度:检查安装图是否清晰易懂,便于施工人员理解和操作。
标注完整性:检查安装图中的标注是否完整,包括阀门规格、安全措施等信息。
氨系统阀门安装图是氨系统设计和施工的重要依据。正确绘制和审核安装图,对于确保氨系统的安全运行和高效运行具有重要意义。在实际操作中,应严格按照相关规范和标准进行安装,确保系统的稳定性和可靠性。